Share on Facebook Share on twitter Share on LinkedIn Share by mail Share by Whatsapp
Serie SC156TT - by , 2021-02-26 02:12:44

La serie per serramenti ad apertura alzante-scorrevole ALUK SC156 è stata progettata per consentire la costruzione di infissi di qualità, di dimensioni e pesi importanti con particolare attenzione alle caratteristiche di permeabilità all’aria, tenuta all’acqua, prestazioni termiche, acustiche e antieffrazione.

La geometria delle sezioni e le caratteristiche dei materiali di tenuta adottati garantiscono ottime prestazioni termiche UF.
I conseguenti valori UW permettono di raggiungere fino a 3 crediti (in base a zona climatica, rapporto S/V, orientamento dell’edificio, esposizione, caratteristiche dell’involucro ed impiantistiche, ecc.) riferiti all’ottimizzazione delle prestazioni energetiche secondo la norma UNI/TS 11300/2008 all’interno del protocollo LEED.

La serie SC156 offre pertanto un contributo nella progettazione di edifici sostenibili sia sotto il profilo energetico, sia dal punto di vista del consumo di risorse ambientali coinvolte nel processo di realizzazione.

Particolare attenzione, vista la tenuta del sistema, sarà da porre al controllo termoigrometrico degli ambienti interni e, in particolare, ai ricambi d’aria, per evitare incrementi di umidità che potrebbero generare riduzioni del comfort degli occupanti e fenomeni di condensazione o muffe sulle superfici interne.

SIMIM

La serie per serramenti ad apertura alzante-scorrevole ALUK SC156 è stata progettata per consentire la costruzione di infissi di qualità, di dimensioni e pesi importanti con particolare attenzione alle caratteristiche di permeabilità all’aria, tenuta all’acqua, prestazioni termiche, acustiche e antieffrazione.

La geometria delle sezioni e le caratteristiche dei materiali di tenuta adottati garantiscono ottime prestazioni termiche UF.
I conseguenti valori UW permettono di raggiungere fino a 3 crediti (in base a zona climatica, rapporto S/V, orientamento dell’edificio, esposizione, caratteristiche dell’involucro ed impiantistiche, ecc.) riferiti all’ottimizzazione delle prestazioni energetiche secondo la norma UNI/TS 11300/2008 all’interno del protocollo LEED.

La serie SC156 offre pertanto un contributo nella progettazione di edifici sostenibili sia sotto il profilo energetico, sia dal punto di vista del consumo di risorse ambientali coinvolte nel processo di realizzazione.

Particolare attenzione, vista la tenuta del sistema, sarà da porre al controllo termoigrometrico degli ambienti interni e, in particolare, ai ricambi d’aria, per evitare incrementi di umidità che potrebbero generare riduzioni del comfort degli occupanti e fenomeni di condensazione o muffe sulle superfici interne.

Serie SC156TT

Serie per alzanti-scorrevoli a Taglio Termico

Serie SC156TT

La serie per serramenti ad apertura alzante-scorrevole ALUK SC156 è stata progettata per consentire la costruzione di infissi di qualità, di dimensioni e pesi importanti con particolare attenzione alle caratteristiche di permeabilità all’aria, tenuta all’acqua, prestazioni termiche, acustiche e antieffrazione.

La geometria delle sezioni e le caratteristiche dei materiali di tenuta adottati garantiscono ottime prestazioni termiche UF.
I conseguenti valori UW permettono di raggiungere fino a 3 crediti (in base a zona climatica, rapporto S/V, orientamento dell’edificio, esposizione, caratteristiche dell’involucro ed impiantistiche, ecc.) riferiti all’ottimizzazione delle prestazioni energetiche secondo la norma UNI/TS 11300/2008 all’interno del protocollo LEED.

La serie SC156 offre pertanto un contributo nella progettazione di edifici sostenibili sia sotto il profilo energetico, sia dal punto di vista del consumo di risorse ambientali coinvolte nel processo di realizzazione.

Particolare attenzione, vista la tenuta del sistema, sarà da porre al controllo termoigrometrico degli ambienti interni e, in particolare, ai ricambi d’aria, per evitare incrementi di umidità che potrebbero generare riduzioni del comfort degli occupanti e fenomeni di condensazione o muffe sulle superfici interne.

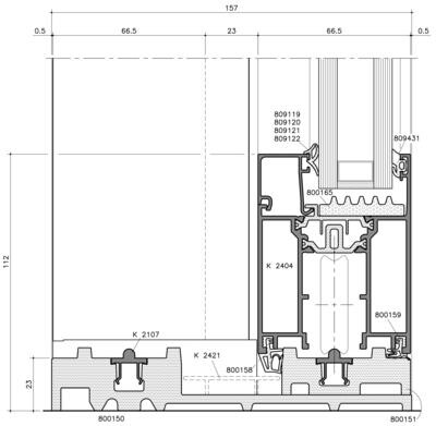
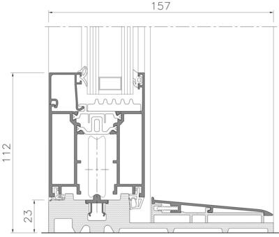
Dati tecnici

Profili per scorrevoli a taglio termico

Profondità telai: 156 mm
Profondità ante: 67 mm

Trasmittanza termica

Valore di trasmittanza Uw pari a 1,4 W/m2K con vetro Ug = 1,0 W/m2K warmedge calcolato secondo normativa UNI EN ISO 10077-1:2007.
Dim. 2500X2180mm

Tipologie realizzabili

Finestre e porte alzanti-scorrevoli, nella configurazione a due, tre o quattro ante.

Abbiamo realizzato con Serie SC156TT

#Taglio termico

Infissi scorrevoli per abitazione unifamiliare

Infissi per edifici sostenibili sotto il profilo energetico

#Taglio termico

Infissi a tagli termico

Infissi per edifici sostenibili sotto il profilo energetico

#Taglio termico

Realizzazione Taglio Termico - Supermercato EUROSPIN

#Taglio termico

Serramenti Taglio Termico in casa privata

#Taglio termico

Realizzazione facciate per oratorio

Approfitta dei bonus fiscali

Ogni anno il governo mette a disposizione fondi per la ristrutturazione e la qualificazione energetica, rimetti a nuovo la tua casa approfittando delle detrazioni

Scopri come approfittare dei bonus