Share on Facebook Share on twitter Share on LinkedIn Share by mail Share by Whatsapp
Serie SL50 - by , 2021-02-26 02:28:17

Questo sistema a montanti e traversi è studiato per poter realizzare facciate continue verticali, a sviluppo piano o poligonale.

La serie dispone di profili di varie misure e statica a seconda delle esigenze di progettazione con sezione di 50 mm.

Le parti apribili inserite sono nella classica versione anti ribalta e sporgere disponibile sia in versione con incollaggio strutturale che con ritegno meccanico.

SIMIM

Questo sistema a montanti e traversi è studiato per poter realizzare facciate continue verticali, a sviluppo piano o poligonale.

La serie dispone di profili di varie misure e statica a seconda delle esigenze di progettazione con sezione di 50 mm.

Le parti apribili inserite sono nella classica versione anti ribalta e sporgere disponibile sia in versione con incollaggio strutturale che con ritegno meccanico.

Serie SL50

Sistema per facciate continue verticali

Serie SL50

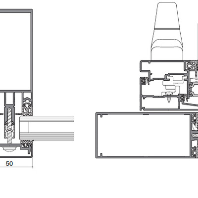
Questo sistema a montanti e traversi è studiato per poter realizzare facciate continue verticali, a sviluppo piano o poligonale.

La serie dispone di profili di varie misure e statica a seconda delle esigenze di progettazione con sezione di 50 mm.

Le parti apribili inserite sono nella classica versione anti ribalta e sporgere disponibile sia in versione con incollaggio strutturale che con ritegno meccanico.

Dati tecnici


Profili per facciata

I montanti con larghezza di 50 mm sono disponibili con profondità comprese tra 55 e 205 mm.

Trasmittanza termica

Trasmittanza termica della griglia di facciata compresa tra 1.1 e 2.6 W/m2·K (in funzione degli elementi di taglio termico e guarnizioni adottate) calcolato secondo normativa europea EN 13947 mediante software validato.
Rw = 46 dB

Tipologie realizzabili

Facciate continue verticali a sviluppo piano o poligonale.
Possibilità di inserimento di infissi a sporgere ad antaribalta, porte d’ingresso.

Abbiamo realizzato con Serie SL50

#Facciate continue

Realizzazione facciata

Le facciate continue, chiamate anche curtain wall, sono particolari strutture con griglie a montanti e traversi che garantiscono una superficie leggera e continua, ma estremamente resistente

Approfitta dei bonus fiscali

Ogni anno il governo mette a disposizione fondi per la ristrutturazione e la qualificazione energetica, rimetti a nuovo la tua casa approfittando delle detrazioni

Scopri come approfittare dei bonus