Share on Facebook Share on twitter Share on LinkedIn Share by mail Share by Whatsapp
Serie SL60 - by , 2021-02-24 03:06:39

Questo sistema a montanti e traversi è studiato per poter realizzare facciate continue verticali, facciate inclinate, coperture, cupole, tunnel e costruzioni poligonali.

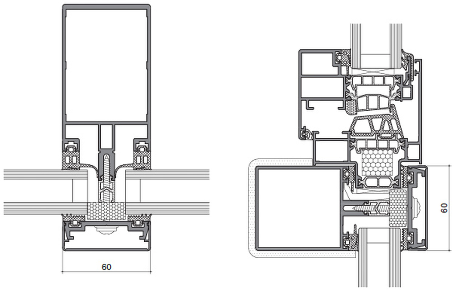
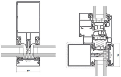
La serie dispone di profili per la struttura portante, larghezza di 60 mm, tra i quali è possibile scegliere la sezione staticamente più idonea al progetto.

Le parti apribili inserite sono nella classica versione anti ribalta e sporgere disponibile sia in versione con incollaggio strutturale che con ritegno meccanico

SIMIM

Questo sistema a montanti e traversi è studiato per poter realizzare facciate continue verticali, facciate inclinate, coperture, cupole, tunnel e costruzioni poligonali.

La serie dispone di profili per la struttura portante, larghezza di 60 mm, tra i quali è possibile scegliere la sezione staticamente più idonea al progetto.

Le parti apribili inserite sono nella classica versione anti ribalta e sporgere disponibile sia in versione con incollaggio strutturale che con ritegno meccanico

Serie SL60

Sistema per facciate continue e coperture

Serie SL60

Questo sistema a montanti e traversi è studiato per poter realizzare facciate continue verticali, facciate inclinate, coperture, cupole, tunnel e costruzioni poligonali.

La serie dispone di profili per la struttura portante, larghezza di 60 mm, tra i quali è possibile scegliere la sezione staticamente più idonea al progetto.

Le parti apribili inserite sono nella classica versione anti ribalta e sporgere disponibile sia in versione con incollaggio strutturale che con ritegno meccanico

Dati tecnici

Profili

I montanti con larghezza di 60 mm sono disponibili con profondità variabili a seconda delle esigenze di progetto.

Tipologie costruttive

Facciate continue verticali, facciate inclinate, coperture, cupole, tunnel e costruzioni poligonali.

Vetrazione e tamponamenti

I profili consentono il montaggio di vetri da 5 a 38 mm

Trasmittanza termica

Ricavato da calcolo seconda norma internazionale EN ISO 10077-2
Uf = 1,1-2,6 W/m2K

Potere fonoisolante

Ricavato dalla prova sperimentale secondo lo standard internazionale EN ISO 140-3
Rw = max 40 dB

Abbiamo realizzato con Serie SL60

#Vano scala

Realizzazione vano scala per condominio

#Coperture

Realizzazione di copertura

#Taglio termico

Serramenti Taglio Termico in casa privata

#Facciate continue

Facciata continua in alluminio

Approfitta dei bonus fiscali

Ogni anno il governo mette a disposizione fondi per la ristrutturazione e la qualificazione energetica, rimetti a nuovo la tua casa approfittando delle detrazioni

Scopri come approfittare dei bonus